






CONDUR ISR Adaptor pentru a fi asamblat cu cutii de joncțiune
Adaptorul CONDUR a fost proiectat pentru a fi asamblat cu cutii de joncțiune CONDUR după îndepărtarea sigiliilor sau garniturilor, pentru conectarea sigură la conductele rigide și pliabile KOUVIDIS. Este o parte a sistemelor de tuburi CONDUR – CONFLEX, MEDISOL – MEDIFLEX, SILCOR – SIFLEX, CONDUR HF – CONFLEX HF și pentru gestionarea și protecția cablurilor.
Adaptorul CONDUR încorporează un aditiv special anti-rozătoare pentru a maximiza siguranța în instalațiile electrice împotriva atacurilor animalelor. (Brevet protejat de Oficiul European de Brevete)
aflați mai multe despre inovație
DOMENII DE APLICARE
Ideale pentru instalațiile electrice expuse
- STANDARD DE APLICARE:EN 61386.1
- INSTRUCȚIUNI DE CONFORMITATE:2014/35/EE (LVD), 2011/65/EE (RoHS)
- CULOARE:Gri deschis RAL 7035
Conformitatea produsului cu toate cerințele Directivelor Europene în vigoare
Temperatura min-max de aplicare permanentă
Produs cu stabilitate UV suplimentară
Produsul nu propagă flăcările
Produsul este fabricat din materii prime fără halogeni - absența fluorului, iodului, bromului, clorului etc.
Produsul nu reprezintă un aliment atractiv pentru rozătoare
Tehnologie Antistatică
Tehnologie anti-zgarieturi
- PROPRIETĂȚI
- CARACTERISTICI
- AMBALARE
- DESCĂRCARE
| Proprietăți | |
| Materii prime | Rezistența la metale grele (RoHS), termoplastic special stabilizat PO blend fără halogeni |
| Interval de temperatură | -25oC până +60oC |
| Caracteristici electrice | Cu caracteristici de izolare electrică |
| Rezistență la propagarea flăcărilor | Produsul nu propagă flăcările |
| Rezistența la UV | Produs cu stabilitate UV suplimentară |
| Fără halogeni | Nu degajă gaze toxice sau corozive în caz de incendiu |
| Tehnologie Antistatică | Protecție împotriva electricității statice |
| Tehnologie anti-zgâriere | Protecție împotriva zgârierii prin pozarea cablurilor |
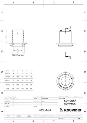
| Tip | Număr de comandă | ![]() |
![]() |
![]() |
![]() |
![]() |
![]() |
| Ø16 | 4036016 | 13 | 16 | 18.5 | 20 | 4×30 | 1920 |
| Ø20 | 4036020 | 16.5 | 20 | 22.5 | 20 | 4×30 | 1200 |
| Ø25 | 4036025 | 21.5 | 25 | 32 | 33 | 20 | 1260 |
| Ø32 | 4036032 | 27.5 | 32 | 35 | 33 | 20 | 960 |



























